Beachfront-2-bedroom-apartment with sea view in Hurghada Egypt Sahl Hasheesh
€185 000
ID 109010
Uploaded 30.09.2025
Key features
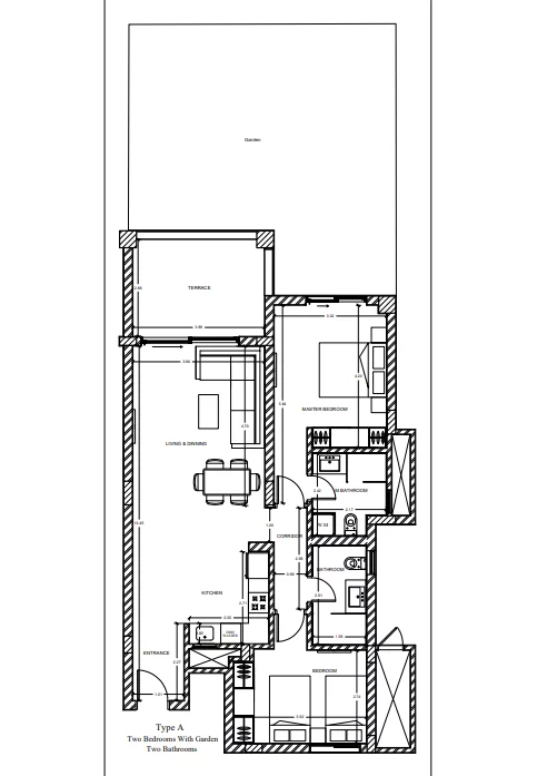
2 bedrooms
2 bathrooms
116 sq.m
/ 1 595 €/sq.m
4 floor
of 6 floors
Details
Property description
If you are searching for a beachfront apartment in Sahl Hasheesh for sale, this stunning 116 sq.m. sea view apartment in Andalus Resort is a perfect choice. Located on the 4th floor, this property offers breathtaking views of the Red Sea, a modern living space, and access to premium resort-style amenities. Whether you're looking for a holiday home, an investment property, or a permanent residence, this apartment provides an exceptional lifestyle in one of Egypt’s most sought-after coastal destinations.
The apartment features a spacious and bright living area, designed for comfort and relaxation. The open-plan kitchen is fully equipped with modern appliances, making it ideal for cooking and entertaining. From the living area, you can step onto a private balcony that offers a spectacular sea view, perfect for enjoying the sunrise, sea breeze, and warm Egyptian climate.
There are two well-designed bedrooms, one with a double bed and the other with a large-size bed, providing ample space for families or guests. Additionally, the apartment includes two modern bathrooms with contemporary fixtures. Located on the 4th floor, the property is easily accessible via an elevator, ensuring convenience for all residents.
Andalus Resort offers exclusive amenities that make this property a standout choice. Residents can enjoy two large swimming pools on the ground floor, as well as a private beach, offering direct access to the crystal-clear waters of the Red Sea. For added luxury, the resort features a rooftop swimming pool exclusively for property owners, providing a more private and serene setting. The gated community also offers 24/7 security, ensuring safety and peace of mind for residents.
This fully equipped apartment in Sahl Hasheesh is perfect for those looking to invest in real estate, retire by the sea, or own a dream holiday home. With its prime location, stunning sea views, and high rental potential, this property is an excellent investment opportunity. If you are looking for a luxury apartment for sale in Sahl Hasheesh, this is a rare find.
Contact us today to schedule a viewing and make this beautiful apartment yours!
The apartment features a spacious and bright living area, designed for comfort and relaxation. The open-plan kitchen is fully equipped with modern appliances, making it ideal for cooking and entertaining. From the living area, you can step onto a private balcony that offers a spectacular sea view, perfect for enjoying the sunrise, sea breeze, and warm Egyptian climate.
There are two well-designed bedrooms, one with a double bed and the other with a large-size bed, providing ample space for families or guests. Additionally, the apartment includes two modern bathrooms with contemporary fixtures. Located on the 4th floor, the property is easily accessible via an elevator, ensuring convenience for all residents.
Andalus Resort offers exclusive amenities that make this property a standout choice. Residents can enjoy two large swimming pools on the ground floor, as well as a private beach, offering direct access to the crystal-clear waters of the Red Sea. For added luxury, the resort features a rooftop swimming pool exclusively for property owners, providing a more private and serene setting. The gated community also offers 24/7 security, ensuring safety and peace of mind for residents.
This fully equipped apartment in Sahl Hasheesh is perfect for those looking to invest in real estate, retire by the sea, or own a dream holiday home. With its prime location, stunning sea views, and high rental potential, this property is an excellent investment opportunity. If you are looking for a luxury apartment for sale in Sahl Hasheesh, this is a rare find.
Contact us today to schedule a viewing and make this beautiful apartment yours!
Agency: Regal Estate Hurghada
Sama Atef
Agent at Regal Estate Hurghada
Speaks Arabic, English