4-room apartment in Fuzhine

€380 000
ID 117246 Uploaded 01.12.2025
Key features
Apartments
3 bedrooms 2 bathrooms 3 floor of 4 floors
Details
Panoramic view Playground School/kindergarten Medical institutions Restaurants/cafes Shops nearby Highway access Outdoor parking Balcony Dressing room Hallway Home office Living room Renovated Storage room Wood floor Household appliances Furnishing Heating Air conditioning Internet Intercom Turnkey
Property description
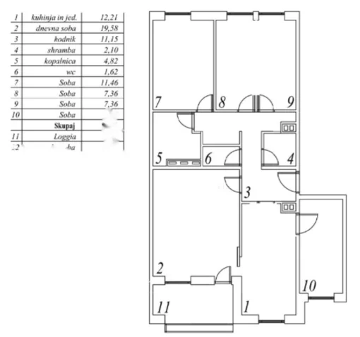
We offer for sale a spacious and bright four-bedroom apartment in the Fuzhine district, located at 18 Chengduiskaya street. The usable area is 77.10 m2 out of a total area of 82.60 m2, which includes a balcony (4.20 m2) and a storage room (1.30 m2). The apartment is located on the third floor of a four-storey building and is ready to move in. A special feature of this facility is the presence of burglar-proof doors and secure parking, as well as an extensive number of free parking spaces.

The apartment is partially furnished and has custom-made furniture: a kitchen with built-in appliances, a chest of drawers in the living room, a double bed with a lifting mechanism, a walk-in closet and a shoe cabinet. The living room has access to a balcony with panoramic views of the surrounding nature. The apartment has three bedrooms, a separate bathroom and a bathroom, as well as a cozy hallway.

The restoration process was carried out between 2010 and 2015, including the renovation of the bathroom and kitchen, the installation of new windows and balcony doors, the renovation of the flooring on the balcony, as well as the installation of new burglar doors. Additionally, the parquet was washed and varnished, the walls and ceiling were whitewashed, and a heating and air conditioning system was installed.

The apartment is located in a picturesque location, within walking distance of all necessary infrastructure, including kindergartens, schools, medical facilities, shops, restaurants and playgrounds. The proximity to bus stops and the motorway provides convenient access to the center of Ljubljana and its surroundings.

  • Total area: 82.60 m2
  • Floor: 3/4
  • Number of bedrooms: 3
  • Bathroom + separate bathroom
  • Balcony: 4.20 m^2
  • Storage room: 1.30 m^2
  • Heating: central, radiators, air conditioning
  • Intercom system and optical Internet
  • Partially furnished
  • Pets are allowed

Price: 380,000 EUR

Agency: MIRAG CONSULTING D.O.O.
Similar properties
€369 000
2 bedrooms
We offer for sale a spacious two-bedroom apartment with an area of 134.3 m2, located in a semi-detached house in a prestigious area of...
€349 000
2 bedrooms
We offer a spacious and bright two-bedroom apartment in the Trnovo Suburb area, at a short distance from the city center. The total area...
€398 000
2 bedrooms
We present to your attention a beautiful, bright and spacious two-bedroom apartment located on Tselovska street in the Shishka district of Ljubljana. This apartment...
€387 000
A spacious four-bedroom apartment with an area of 89 m2 is located in the heart of Ljubljana and offers comfortable accommodation adapted to modern...
€360 000
2 bedrooms
Предлагается к продаже великолепная двухкомнатная квартира в районе Бежиград в Любляне, расположенная на улице Метода Микужа. Общая площадь составляет 76,3 м^2, квартира находится на...
€369 000
2 bedrooms
We offer a bright and functional apartment located in the Stojice area with a total area of 67.3 m2. This is a great opportunity...
€400 000
3 bedrooms
We offer for sale a spacious two-bedroom apartment with an area of 75 m2, located in a quiet area of Nizhnyaya Shishka. The apartment...
€355 000
1 bedroom
In the heart of Ljubljana, just a three-minute walk from the city center, we offer a spacious one-bedroom apartment with a unique view of...
€365 500
3 bedrooms
For sale is a spacious apartment with an area of 86.06 m2, located in the Shentvid district, in a house built in 1984. This...
€376 000
2 bedrooms
We present to your attention a bright and functional two-bedroom apartment in the Kodelevo district with an area of 76.1 m2. It is located...
Contact Seller